- Accueil
- Immobilier professionnel
- Paris
- Paris
- bureaux
Référence : FR1-887
Partager
bureaux
Description de l'offre
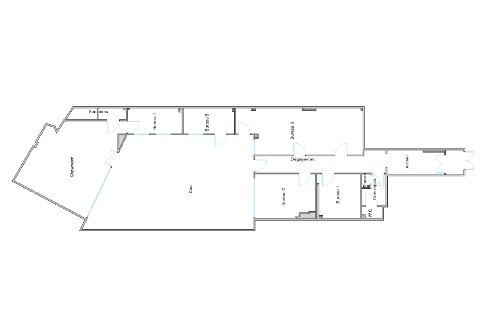
PARIS 17 - NIEL / PEREIRE - Dans un immeuble bien entretenu, les bureaux (135 m2 carrez) sont accessibles depuis la rue avec une entrée indépendante de l'immeuble. Ils sont complètement modulables et en très bon état général. Les quatre bureaux et deux salles de réunion (111 m2) s'organisent autour d'une cour privative (63m2) et disposent d'un sous-sol (24 m2) avec une arrivée d'eau aménageable. Un emplacement de PARKING au 1er sous-sol de l'immeuble complète ce bien.Les bureaux sont actuellement soumis à bail commercial.
Descriptif du bien
- Type de transac : Bureaux
- Code postal : 75017
- Surface habitable (m²) : 135 m²
- surface terrain : 50 m²
- Ascenseur : NON
- Superficie (m²) : 135
- Mode de chauffage : Autre
- Type de chauffage : Autre
- Format de chauffage : AUTRE
- Interphone : NON
- Terrasse : NON
- Cave : NON
- Copropriété : OUI
- Quote Part annuelle des charges : 5 124 €
- Prix de vente honoraires inclus : 1 200 000 €
- Honoraires à la charge acquéreur : 3,45 %
La ville de Paris (75017)
Ce bien vous intéresse ?
Partager l'offre
Nous Contacter
Afficher le téléphone 01 40 68 98 43Les informations recueillies sur ce formulaire sont enregistrées dans un fichier informatisé par La Boite Immo agissant comme Sous-traitant du traitement pour la gestion de la clientèle/prospects de l'Agence / du Réseau qui reste Responsable du Traitement de vos Données personnelles.
La base légale du traitement repose sur l'intérêt légitime de l'Agence / du Réseau.
Elles sont conservées jusqu'à demande de suppression et sont destinées à l'Agence / au Réseau.
Conformément à la loi « informatique et libertés », vous disposez des droits d’accès, de rectification, d’effacement, d’opposition, de limitation et de portabilité de vos données. Vous pouvez retirer votre consentement à tout moment en contactant directement l’Agence / Le Réseau.
Consultez le site https://cnil.fr/fr pour plus d’informations sur vos droits.
Si vous estimez, après avoir contacté l'Agence / le Réseau, que vos droits « Informatique et Libertés » ne sont pas respectés, vous pouvez adresser une réclamation à la CNIL.
Nous vous informons de l’existence de la liste d'opposition au démarchage téléphonique « Bloctel », sur laquelle vous pouvez vous inscrire ici : https://www.bloctel.gouv.fr
Dans le cadre de la protection des Données personnelles, nous vous invitons à ne pas inscrire de Données sensibles dans le champ de saisie libre.
Ce site est protégé par reCAPTCHA, les Politiques de Confidentialité et les Conditions d'Utilisation de Google s'appliquent.

