- Accueil
- Location immobilier professionnel
- Paris
- Paris
- Bureaux à louer - Boulevard du Sebastopol - 390m2
Référence : FR1-1007
Partager
Bureaux à louer - Boulevard du Sebastopol - 390m2
Description de l'offre
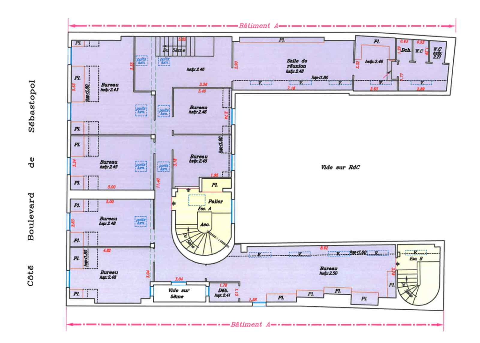
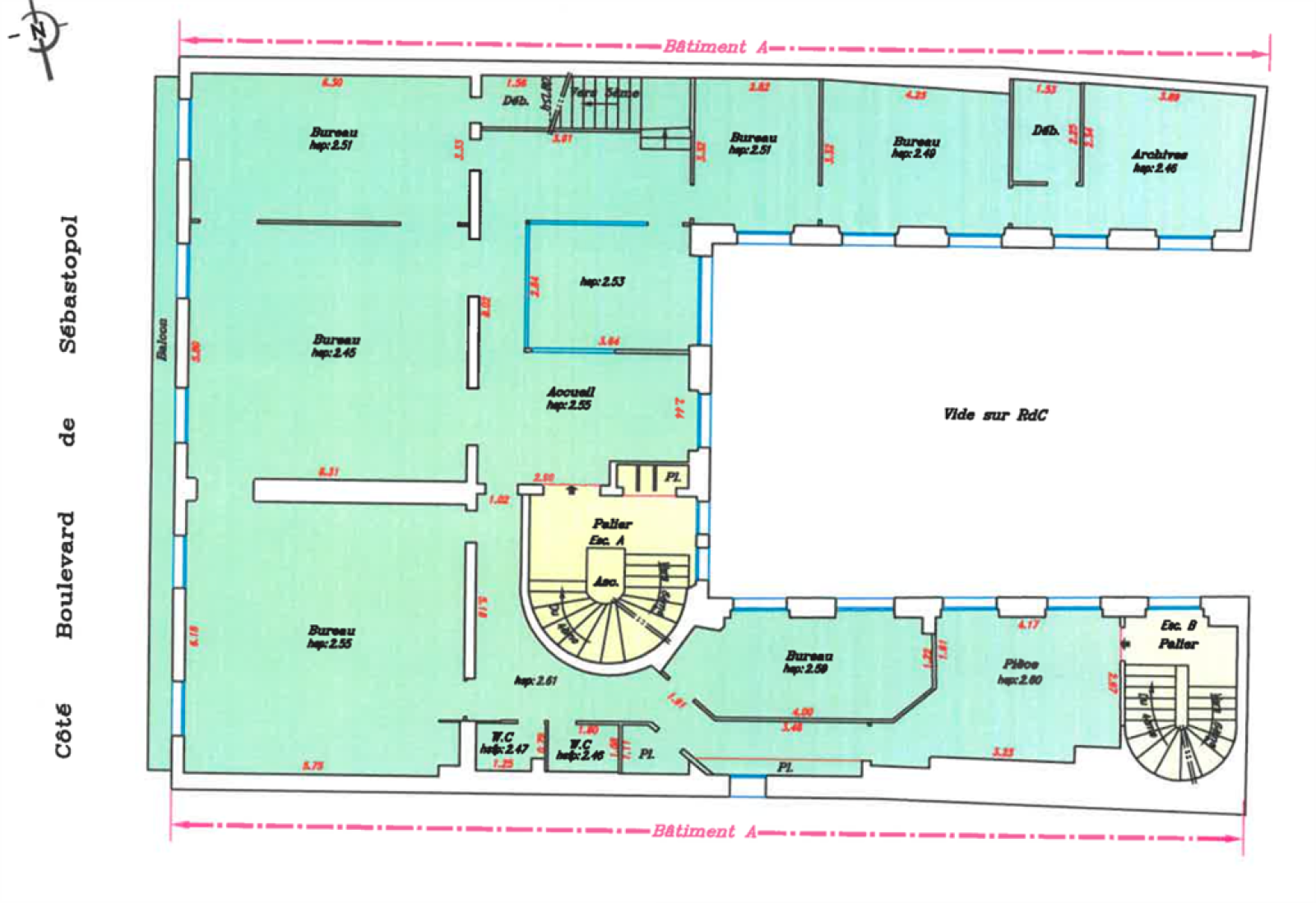
En plein cœur du 3e arrondissement, nous vous proposons à la location ces locaux de 387 m² carrez sur deux étages 5 et 6 relié par un escalier intérieur.Le loyer annuel HC HT proposé est de 232 000€Les provisions de charges trimestrielles s’élèvent à 4.000,00€ HT.En sus des charges annuelles courantes, les charges suivantes seront également dues par la Preneur:- la taxe foncière à la charge du preneur d’un montant de 13700€ HT en 2025- l’assurance de l’immeuble 1580€HT en 2024- la taxe bureaux 8355€ HT en 2025Le dépôt de garantie (non soumis à TVA) s’élève à 3 mois de loyer HT.Disponibilité en Mars 2026, création de climatisation au 6e étage (Pas de climatisation au 5e).Les embellissements peinture et moquette ne sont pas réalisés compte tenu d’un décloisonnement possible. Nous proposons en contrepartie de mettre en place une franchise à cet effet.
Descriptif du bien
- Type de transac : Bureaux
- Code postal : 75003
- Surface habitable (m²) : 390 m²
- Etage : 5
- Ascenseur : OUI
- Superficie (m²) : 390
- Mode de chauffage : Autre
- Type de chauffage : Autre
- Format de chauffage : Individuel
- Interphone : OUI
- Terrasse : NON
- Cave : NON
- Copropriété : NON
- Loyer : 232 000 € / an
- Dont état des lieux : Non renseigné
- Dépot de garantie : 58 000 €
- Charges locatives (provision donnant lieu à régularisation annuelle) : 1 333,33 €
La ville de Paris (75003)
Ce bien vous intéresse ?
Partager l'offre
Nous Contacter
Afficher le téléphone 01 40 68 98 43Les informations recueillies sur ce formulaire sont enregistrées dans un fichier informatisé par La Boite Immo agissant comme Sous-traitant du traitement pour la gestion de la clientèle/prospects de l'Agence / du Réseau qui reste Responsable du Traitement de vos Données personnelles.
La base légale du traitement repose sur l'intérêt légitime de l'Agence / du Réseau.
Elles sont conservées jusqu'à demande de suppression et sont destinées à l'Agence / au Réseau.
Conformément à la loi « informatique et libertés », vous disposez des droits d’accès, de rectification, d’effacement, d’opposition, de limitation et de portabilité de vos données. Vous pouvez retirer votre consentement à tout moment en contactant directement l’Agence / Le Réseau.
Consultez le site https://cnil.fr/fr pour plus d’informations sur vos droits.
Si vous estimez, après avoir contacté l'Agence / le Réseau, que vos droits « Informatique et Libertés » ne sont pas respectés, vous pouvez adresser une réclamation à la CNIL.
Nous vous informons de l’existence de la liste d'opposition au démarchage téléphonique « Bloctel », sur laquelle vous pouvez vous inscrire ici : https://www.bloctel.gouv.fr
Dans le cadre de la protection des Données personnelles, nous vous invitons à ne pas inscrire de Données sensibles dans le champ de saisie libre.
Ce site est protégé par reCAPTCHA, les Politiques de Confidentialité et les Conditions d'Utilisation de Google s'appliquent.

