Référence : FR1-910
Partager
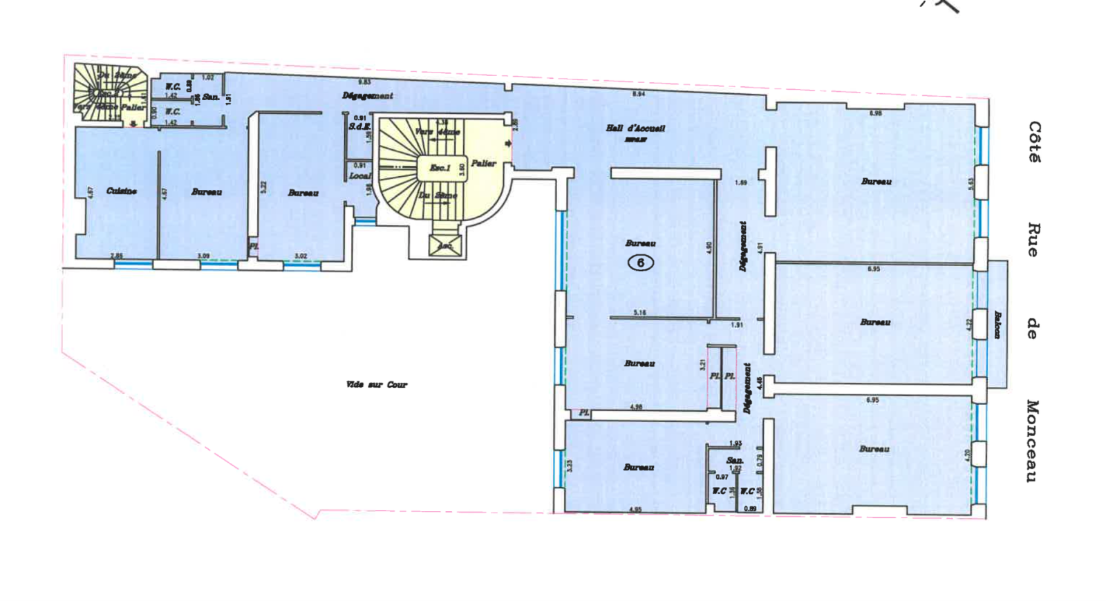
Paris 8 - VILLIERS - Bureaux à louer rue de Monceau
Description de l'offre
Paris 8 - VILLIERS - Bureaux à louer rue de Monceau Dans un très bel immeuble aux parties communes de qualité, nous vous proposons ces locaux de 269m2 carrez au 3e étage par ascenseur. Le bien se compose d'un accueil, de 8 bureaux distincts et d'un espace cuisine. Loyer proposé à paliers progressifs les 3 premières années: 1ere année 160.000,00€ HT/HC/an 2e année 165.000, 00€ HT/HC/an + indexation 3e année 170.000,00€ HT/HC/an + indexation Le loyer est soumis à la CRL et non à la TVA. Les provisions de charges trimestrielles s?élèvent à 3730€ / trim et comprennent la taxe foncière pour un montant de 4939,11€ pour l?exercice 2024. L?assurance de l?immeuble s?élevait à 1272€ en 2024 La taxe bureaux s?élevait à 6751,74€ HT en 2025 Le dépôt de garantie (non soumis à TVA) s?élève à 3 mois de loyer HC.
Descriptif du bien
- Code postal : 75008
- Surface habitable (m²) : 270 m²
- Meublé : Non renseigné
- Etage : 3
- Ascenseur : OUI
- Mode de chauffage : Autre
- Type de chauffage : Autre
- Format de chauffage : Individuel
- Murs mitoyens : 1
- Cave : OUI
- Copropriété : OUI
- Loyer CC* / mois : 160 000 €
- Dont état des lieux : Non renseigné
- Dépôt de garantie TTC : Non renseigné
La ville de Paris (75008)
Ce bien vous intéresse ?
Partager l'offre
Nous Contacter
Afficher le téléphone 01 40 68 98 43Les informations recueillies sur ce formulaire sont enregistrées dans un fichier informatisé par La Boite Immo agissant comme Sous-traitant du traitement pour la gestion de la clientèle/prospects de l'Agence / du Réseau qui reste Responsable du Traitement de vos Données personnelles.
La base légale du traitement repose sur l'intérêt légitime de l'Agence / du Réseau.
Elles sont conservées jusqu'à demande de suppression et sont destinées à l'Agence / au Réseau.
Conformément à la loi « informatique et libertés », vous disposez des droits d’accès, de rectification, d’effacement, d’opposition, de limitation et de portabilité de vos données. Vous pouvez retirer votre consentement à tout moment en contactant directement l’Agence / Le Réseau.
Consultez le site https://cnil.fr/fr pour plus d’informations sur vos droits.
Si vous estimez, après avoir contacté l'Agence / le Réseau, que vos droits « Informatique et Libertés » ne sont pas respectés, vous pouvez adresser une réclamation à la CNIL.
Nous vous informons de l’existence de la liste d'opposition au démarchage téléphonique « Bloctel », sur laquelle vous pouvez vous inscrire ici : https://www.bloctel.gouv.fr
Dans le cadre de la protection des Données personnelles, nous vous invitons à ne pas inscrire de Données sensibles dans le champ de saisie libre.
Ce site est protégé par reCAPTCHA, les Politiques de Confidentialité et les Conditions d'Utilisation de Google s'appliquent.

