- Accueil
- Vente
- Eure
- Les andelys
- A 15 MINUTES DE LA GARE DE GAILLON-AUBEVOYE : Maison de de 5 pièces de 133,85 m2 - LES ANDELYS (2770
Référence : FR1-735L
Calculette
Partager
A 15 MINUTES DE LA GARE DE GAILLON-AUBEVOYE : Maison de de 5 pièces de 133,85 m2 - LES ANDELYS (2770
Description de l'offre
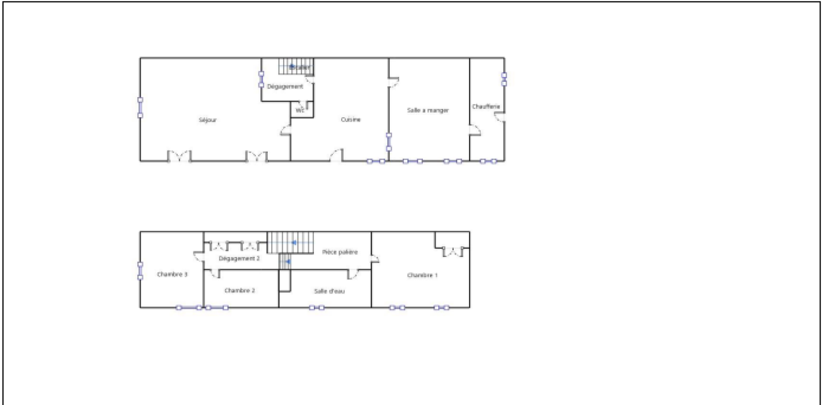
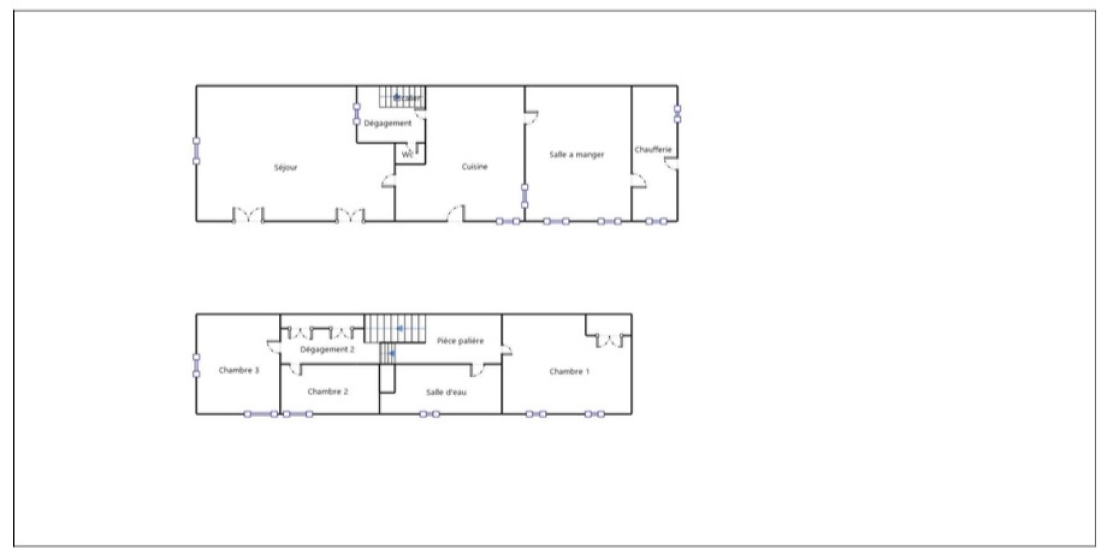
A 15 MINUTES DE LA GARE DE GAILLON-AUBEVOYE (Une heure de PARIS) Maison de ville de 5 pièces de 133,85 m2 - LES ANDELYS (27700) A proximité immédiate du centre ville, des commerces et écoles (élémentaires et collège). Cette maison (1770) comprend une entrée, un séjour avec cheminée avec très belle hauteur sous plafond, une vaste cuisine aménagée et équipée, une salle à manger, office/local chaufferie. WC indépendant Au premier étage, 3 chambres, salle d'eau avec WC. Cette propriété repose sur une parcelle verdoyante de 700 m2 avec arbres fruitiers, sans vis-à-vis, et bénéficie d'une annexe composée d'un garage et 2 petites pièces.
Descriptif du bien
- Code postal : 27700
- Surface habitable (m²) : 133 m²
- Nombre de chambre(s) : 3
- Nombre de pièces : 6
- Nb de salle d'eau : 1
- Mode de chauffage : Fioul
- Type de chauffage : Cheminée
- Format de chauffage : Individuel
- Murs mitoyens : 1
- Nombre de parking : 1
- Prix de vente honoraires TTC inclus : 180 000 €
La ville de Les Andelys (27700)
Ce bien vous intéresse ?
Partager l'offre
Nous Contacter
Afficher le téléphone 01 40 68 98 43Les informations recueillies sur ce formulaire sont enregistrées dans un fichier informatisé par La Boite Immo agissant comme Sous-traitant du traitement pour la gestion de la clientèle/prospects de l'Agence / du Réseau qui reste Responsable du Traitement de vos Données personnelles.
La base légale du traitement repose sur l'intérêt légitime de l'Agence / du Réseau.
Elles sont conservées jusqu'à demande de suppression et sont destinées à l'Agence / au Réseau.
Conformément à la loi « informatique et libertés », vous disposez des droits d’accès, de rectification, d’effacement, d’opposition, de limitation et de portabilité de vos données. Vous pouvez retirer votre consentement à tout moment en contactant directement l’Agence / Le Réseau.
Consultez le site https://cnil.fr/fr pour plus d’informations sur vos droits.
Si vous estimez, après avoir contacté l'Agence / le Réseau, que vos droits « Informatique et Libertés » ne sont pas respectés, vous pouvez adresser une réclamation à la CNIL.
Nous vous informons de l’existence de la liste d'opposition au démarchage téléphonique « Bloctel », sur laquelle vous pouvez vous inscrire ici : https://www.bloctel.gouv.fr
Dans le cadre de la protection des Données personnelles, nous vous invitons à ne pas inscrire de Données sensibles dans le champ de saisie libre.
Ce site est protégé par reCAPTCHA, les Politiques de Confidentialité et les Conditions d'Utilisation de Google s'appliquent.

